GPS精品砂生产系统优势
1高品质优质砂带来高收益
GPS精品砂石生产系统生产出代替天然砂的机制砂,在配置混凝土过程中,在同等指标下能节约水泥用量。配比成本可下降5-10元
GPS精品砂可直接用于干混砂浆的生产,直接节约干燥成本10元每吨。
生产的石粉可以作为沥青、混凝土、砂浆掺合料(根据原材料)创造额外的附加值
天然优势,天然砂枯竭
环保优势,烂采挖天然砂导致生态破坏
成本优势,机制砂综合成本低于天然砂
粒型优势,机制砂粒型可以做到多棱体及六面体
可调优势,粒型,级配,含粉量均可调,适应能力强
石粉优势,附属石粉可进行二次利用
质量优势,母岩稳定,厂内加工,质量可控

低消耗低成本
高效率系统设计,人力成本降低80%.智能生产模式。
高环保干法工艺,免去传统湿法工艺中污水处量的麻烦和巨大投入
各项核心专用技术,系统性能国际先进水平,与同类产品相比一次性投资节省50%以上。
全新的的无动力选粉系统,保证功耗低。节约运营成本。
细度模数可调
现场根据不同需求,在不更换任何硬件的情况下,可实现细度模数和含粉量的控制。

玄武岩现场取样结果
系统参数
| 型号 | GPS60 | GPS100 |
| 入料粒径 | 0-50 | 0-50 |
| 原料投放量 | 50-60 | 100-110 |
| 产量 | 40-60 | 90-100 |
| 石粉含量(可调) | 3-15% | 3-15% |
| 装机功率 | 约450kw | 约800KW |
| 占地面积 | 20x11 | |
| 主机模块 | 上料模块 | |
| 筛分模块 | ||
| 石粉收集及除尘模块 | ||
| 破碎整形模块 | ||
| 石粉调节及成品输送模块 | ||
| 智能控制模块 | ||
| 结构形式 | 全楼式 | 全楼式 |
| 上料形式 | 提升机 | 提升机 |
| 工作模式 | 单主机 | 单主机或双主机 |
说明:
产量仅供参考,具体产量以确定原材量为准。
技术参数如有变动,恕不另行通知。
有关特定工况下的系统配置和产量信息,咨询公司技术工程师。
GPS精品砂特点
优质砂核心指标测试

优质砂级配
GPS精品砂生产系统,使成品砂的级配可调控,并符合美国标准ASTM C33、中国标准JGJ52二区和印度标准IS383二区等行业标准的限制。
得益于全新工艺设计,使得0.15-0.6mm的细砂占比大幅提升,236-4.75mm粗砂占比下降。使成品砂级配连续,显著提高了成品砂的流动性,降低了空隙率。

普通机制砂材质不稳定、粒径并,级配不合理,细度模数偏大,针片状含量超过10%,对于混凝土性能不利,难于生产高标号高性能混凝土。
精品机制砂母材稳定可靠,粒型佳,细度模数可调,石粉含量可调,级配连续。孔隙率低,生产混凝土节约水泥,适合生产高标号高性能混凝土。通过需要,调配工作形式,生产的精品机制砂可满足各种混凝土及干混砂浆用砂需求。

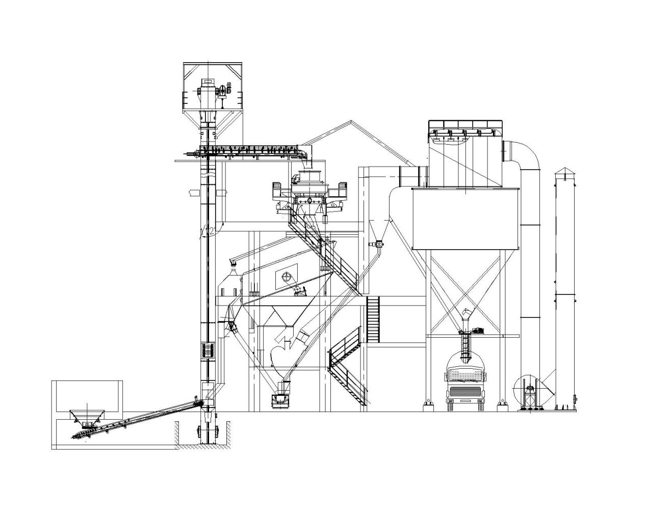
GPS60精品砂生产系统
|
|
|
|
|
|
![]() | ![]() | ![]() |
